Nous suivre
0

PARIS 15éme - ÉTAGE ÉLEVÉE - PLAN EN ÉTOILE, VUE DÉGAGÉE SANS VIS A VIS.

Paris (75015)
Réf : ARVAP250000405

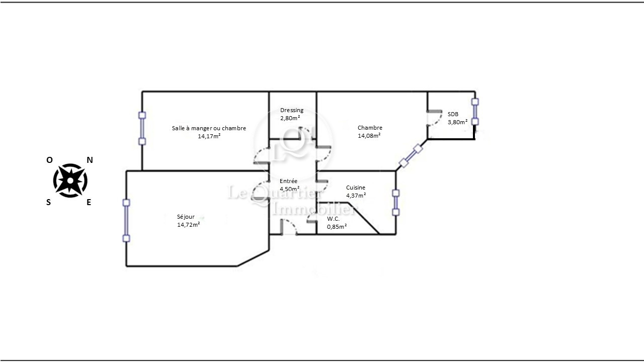
Votre agence Le Quartier Immobilier vous propose à la vente, au sein d’un bel immeuble art déco des années 30, entretenu et sécurisé avec gardien, cet appartement familial de 3 pièces / 2 chambres, traversant et lumineux.

Bénéficiant d’une Triple exposition Sud, Est et Nord, il offre une belle vue dégagée et une luminosité naturelle tout au long de la journée.
Vous serez séduit par le charme de l’ancien, parquet, moulures, cheminée, belle hauteur sous plafond, dans un environnement calme et recherché, à deux pas de la rue Saint-Charles.

Des travaux de rafraîchissement sont à prévoir afin d’en révéler tout le potentiel.

Une cave complète ce bien.

Contactez dès aujourd’hui LE QUARTIER IMMOBILIER pour organiser votre visite.

Prix du bien 570 000 €
Pièce(s) 3
Chambre(s) 2

Caractéristiques du bien

Caractéristiques Valeurs
Code postal 75015
Surface habitable (m²) 59,29 m²
Nombre de chambre(s) 2
Nombre de pièces 3
Etage 6
Vue Dégagée cour et rue
Nb de salle de bains 1
Cuisine Séparée
Mode de chauffage Autre
Type de chauffage Autre
Format de chauffage Collectif
Balcon NON
Terrasse NON
Cave OUI
Surface cave (m²) 6
Exposition Sud-Ouest
Année de construction 1930

Infos financières

Caractéristiques Valeurs
Prix de vente honoraires TTC inclus 570 000 €
Charges 400 €
Taxe foncière annuelle 1 366 €

Bilans énergétiques

DPE GES
Ce bien vous intéresse ?
Fieldset par défaut
Fieldset par défaut
Validation

* Champs obligatoires

Contacter l'agence
Validation
Les informations recueillies sur ce formulaire sont enregistrées dans un fichier informatisé par La Boite Immo agissant comme Sous-traitant du traitement pour la gestion de la clientèle/prospects de l'Agence / du Réseau qui reste Responsable du Traitement de vos Données personnelles.
La base légale du traitement repose sur l’intérêt légitime de l'Agence / du Réseau.
Elles sont conservées jusqu'à demande de suppression et sont destinées à l'Agence / au Réseau.
Conformément à la loi « informatique et libertés », vous pouvez exercer votre droit d'accès aux données vous concernant et les faire rectifier en contactant l'Agence / le Réseau.
Si vous estimez, après avoir contacté l'Agence / le Réseau, que vos droits « Informatique et Libertés » ne sont pas respectés, vous pouvez adresser une réclamation à la CNIL.
Nous vous informons de l’existence de la liste d'opposition au démarchage téléphonique « Bloctel », sur laquelle vous pouvez vous inscrire ici : https://www.bloctel.gouv.fr 
Dans le cadre de la protection des Données personnelles, nous vous invitons à ne pas inscrire de Données sensibles dans le champ de saisie libre
Ce site est protégé par reCAPTCHA, les Politiques de Confidentialité et les Conditions d'Utilisation de Google s'appliquent.

Localisationdu bien

  • Commerces et santé
  • Loisirs
  • Ecoles
  • Transports
  • Pratique